Skip To Content

2489 Gray Wolf Way

Muskegon, MI 49444
  • $363,615
  • STATUS: Active
  • ON SITE: 70 Days
  • MLS #: 25061256
UPDATED: 42 min ago
$363,615
  • 2
    BEDS
  • 0.17
    ACRES
  • 2
    BATHS
  • 0
    1/2 BATHS
  • 1,200
    SQFT
  • $303
    $/SQFT
Neighborhood:
Type:
Single-Family Home
Built:
2026
County:

School Ratings & Info

School District:

Description

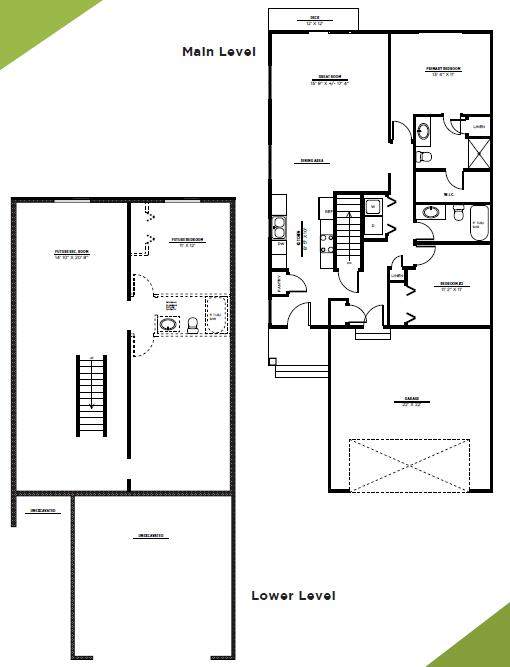
Proposed Build! This 'Tamarack' floorplan is situated on lot #259 with a walkout basement and views of the community greenspace. The Tamarack offers 1200 sq ft of living space with 2 bedrooms and 2 full bathrooms. A front foyer leads you to the galley kitchen. Open concept dining and living are with a slider to a 12x12 treated deck. Convenient main floor laundry. Primary suite offers a private bath and walk in closet. Second bedroom and full bathroom complete the main floor. Upgrades include 9' main floor ceilings, deluxe column with stone, tiled backsplash, and LG stainless steel kitchen appliances. The full basement has egress windows for future finishing of a 3rd bedroom, family room and is plumbed for a 3rd bathroom. Odeno is a custom home development in Fruitport Schools. Winding roads, walking trails, and community ponds set this neighborhood apart. Private and serene, yet just minutes from highway access, shopping, and recreation. Welcome to Odeno- Place of Many Hearts. Some p hotos may be of previously completed homes. Builder to verify finishes and final sale price prior to accepting an offer.

Monthly Payment Calculator



© 2026 MichRIC, LLC. All rights reserved. Information deemed reliable but not guaranteed. Updated: 2026-02-18T10:33:24.503.
www.bhhssnyder.com/homes/171230047
Print Image

2489 Gray Wolf Way Muskegon, MI 49444

  • Price: $363,615
  • Status: Active
  • On Site: 70 Days
  • Updated: 42 min ago
  • MLS #: 25061256
2
Beds
2
Baths
0
½ Baths
0.17
Acres
1,200
SQFT
$303
$/SQFT
2026
Built
Neighborhood:
Fruitport Twp
County:
Muskegon
School District:
Fruitport
Property Description
Proposed Build! This 'Tamarack' floorplan is situated on lot #259 with a walkout basement and views of the community greenspace. The Tamarack offers 1200 sq ft of living space with 2 bedrooms and 2 full bathrooms. A front foyer leads you to the galley kitchen. Open concept dining and living are with a slider to a 12x12 treated deck. Convenient main floor laundry. Primary suite offers a private bath and walk in closet. Second bedroom and full bathroom complete the main floor. Upgrades include 9' main floor ceilings, deluxe column with stone, tiled backsplash, and LG stainless steel kitchen appliances. The full basement has egress windows for future finishing of a 3rd bedroom, family room and is plumbed for a 3rd bathroom. Odeno is a custom home development in Fruitport Schools. Winding roads, walking trails, and community ponds set this neighborhood apart. Private and serene, yet just minutes from highway access, shopping, and recreation. Welcome to Odeno- Place of Many Hearts. Some p hotos may be of previously completed homes. Builder to verify finishes and final sale price prior to accepting an offer.
Exterior Features

Architectural Style Ranch Attached Garage YN Yes Construction Materials Vinyl Siding Garage YN Yes Lot Features [] Other Structures [] Pool Features [] Road Surface Type Paved Roof Composition Water Access YN No Waterfront Features [] Waterfront YN No Window Features Insulated Windows

Interior Features

Appliances DishwasherDisposalMicrowaveRangeRefrigerator Basement FullWalk-Out Access Basement YN Yes Cooling Central Air Cooling YN Yes Fireplace Features [] Fireplace YN No Heating Forced Air Heating YN Yes Interior Features Garage Door OpenerPantry Main Floor Bedrooms 2 Pantry YN Yes Rooms Kitchen (Main Level) Dining Area (Main Level) Great Room (Main Level) Laundry (Main Level) Primary Bedroom (Main Level) Primary Bathroom (Main Level) Bedroom 2 (Main Level) Bathroom 2 (Main Level)

Property Features

Accessibility Features [] Association Amenities Pets Allowed Association Fee 500 Association Fee Frequency Annually Association Fee Includes Other Association YN Yes Auction Or For Sale For Sale Cross Street S. Sheridan & Mt Garfield Listing Terms CashFHAVA LoanConventional New Construction YN Yes Property Sub Type Single Family Residence Sewer Public Tax Annual Amount 0 Tax Year 2024 Utilities [] Water Source Public

Listing provided courtesy of Thomas Serio of Real Estate West: 231-246-8000. © 2026 MichRIC, LLC. All rights reserved. Information deemed reliable but not guaranteed.


© 2026 MichRIC, LLC. All rights reserved. Information deemed reliable but not guaranteed. Updated: 2026-02-18T10:33:24.503.
 
https://bt-photos.global.ssl.fastly.net/swmich/orig_boomver_1_25061256-2.jpg https://bt-photos.global.ssl.fastly.net/swmich/orig_boomver_1_25061256-2.jpg https://bt-photos.global.ssl.fastly.net/swmich/orig_boomver_1_25061256-2.jpg
Logo
Berkshire Hathaway HomeServices Snyder & Company, Realtors®
2655 Plymouth Road
Ann Arbor MI, 48105
;